University of Tampa Moving Ahead with New Dorm Project
A New Dorm project to Move Forward For University of Tampa
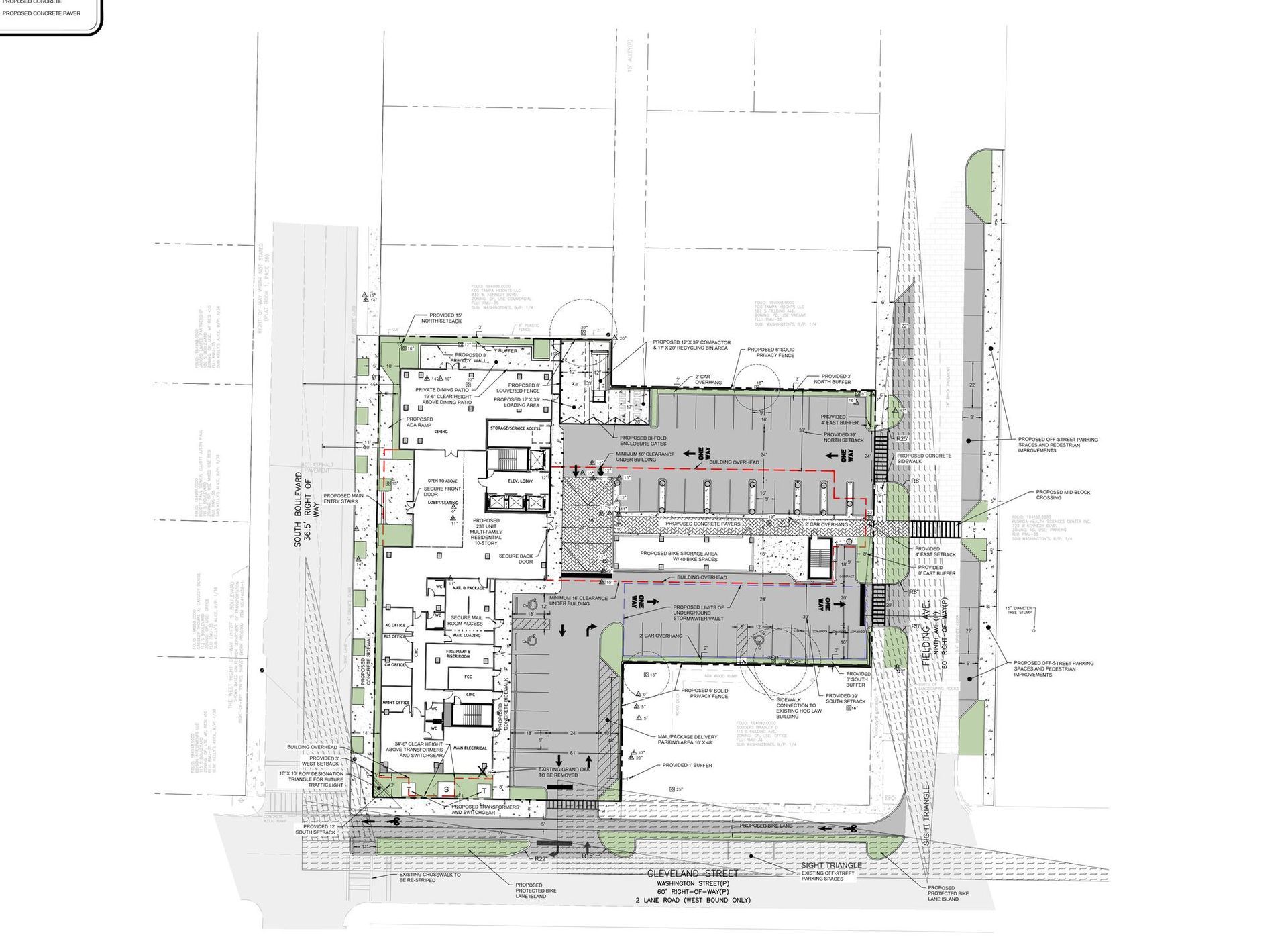
The University of Tampa appears to be moving forward with plans for a new student housing development at 110 South Boulevard. The proposed project consists of an 11-story dormitory with approximately 230 residential units, representing a significant addition to the surrounding area.
The site first drew attention in 2022 when it was proposed as a private student housing development. At that time, WDG Architecture was named as the project architect, with Intown Group as the developer. Intown Group is known locally for successful downtown student housing projects, including The Henry. The original, approved concept for the site called for a substantially larger development: a 22-story tower comprising 182 apartment units and 565 beds, along with amenity spaces, a ground-floor retail bank, and six levels of structured parking.
Under the original proposal, the project totaled approximately 352,125 gross square feet, including 264,544 square feet of residential space, 10,615 square feet of amenity space, 84,595 square feet of parking, and 2,986 square feet of retail. The unit mix included one-, two-, three-, and four-bedroom apartments. Amenity areas were planned for the first, second, and penthouse levels, with residential units occupying floors three through twenty-one. The tower was designed as a post-tension concrete structure, with a precast concrete parking garage, according to WDG Architecture.
The subject parcel was ultimately acquired by the University of Tampa after the private development failed to materialize, despite having received entitlements for a high-rise student apartment tower similar in scale to The Henry in downtown Tampa. That earlier proposal also included ground-floor commercial space intended to replace an existing bank branch formerly located on the site.
While the current university-led proposal represents a reduction in height and density compared to the previously approved private development, it nonetheless reflects continued institutional investment in the area and will remain a notable addition to the South Boulevard corridor.
Sources: TampaTomorrow, URBN Tampa Bay, WDG Architects
Thank you for your interest. Have questions regarding the local market? Navigate the Real Estate Market with confidence, and contact us at Cliggitt Valuation for your appraisal, consulting, and valuation needs today.
Mike Cliggitt, MAI, MRICS, CCIM
813.405.1705 | 863.661.1165 - Direct Lines
findvalue@cliggitt.com
Appraisal & Valuation Markets
Questions about our blog? Contact our Director of Sales & Marketing, Sydney Avolt.
Sydney Avolt
727.403.7418 - Direct Line
SHARE CONTENT





